2625 BARKSDALE COURTCLEARWATER, FL 33761




Mortgage Calculator
Monthly Payment (Est.)
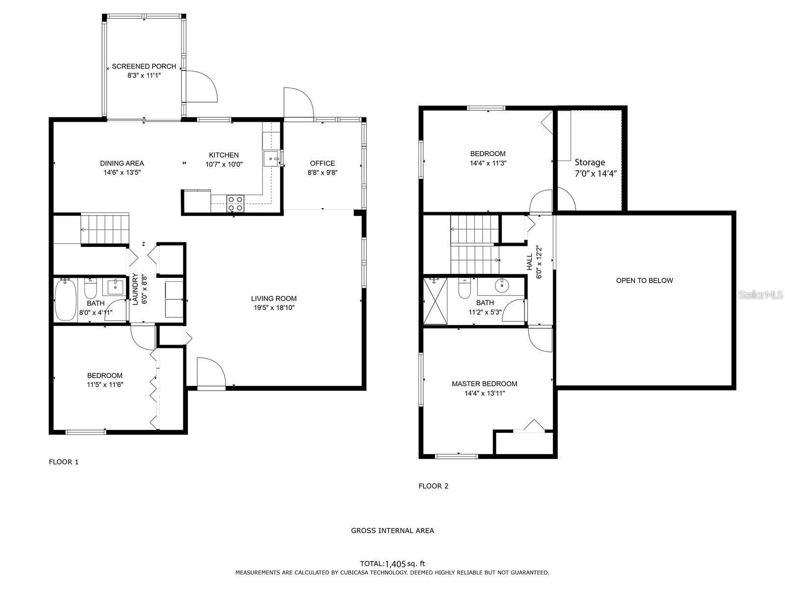
$958Priced to sell! Enjoy this extremely spacious 3 bedroom/2 bath townhouse with 1,405 s.f. Park in your own attached carport that also has a storage closet. Enter into the living room with vaulted ceilings, new laminate flooring and ceiling fan. You have sliders that access the patio as well. The dining room is across from the kitchen and has new laminate flooring. The updated kitchen offers newer white quartz counters, newer white wood cabinets, newer stainless steel sink and matching faucet. The white appliances stay too. The high ceilings have a fan. There are sliders to the back, fenced patio. There is a bedroom, full bath, storage closet and laundry closet (washer and dryer included) downstairs as well. The downstairs bathroom has a new vanity, shower heads, mirrors and towel racks. Upstairs are two huge bedrooms with plenty of closet space and a full bath. This bath also offers a new vanity and mirrors. There is a ton of natural light throughout this home. The entire back patio that spans the entire back of the house is privacy fenced. The roof was replaced in 2020. New hurricane rated windows and doors were installed in 2017. The water heater was replaced October of 2023. The interior was freshly painted October of 2023. This beautifully maintained community has a heated pool and grand oak trees throughout. There is a cycle track/walk path (Duke Energy Bike Trail) across from Barksdale Ct. This is a central and convenient location for heading any direction. Plus, Honeymoon Island, Clearwater Beach, and both airports are all at your fingertips. The mall, Whole Foods, movie theatre, and gym are across the street too. Only 2 owners, Seller has owned since the 90's. Thank you for viewing!
| 8 hours ago | Listing updated with changes from the MLS® | |
| 15 hours ago | Listing first seen on site |
Listing information is provided by Participants of the Stellar MLS. IDX information is provided exclusively for personal, non-commercial use, and may not be used for any purpose other than to identify prospective properties consumers may be interested in purchasing. Information is deemed reliable but not guaranteed. Properties displayed may be listed or sold by various participants in the MLS Copyright 2025, Stellar MLS.
Last checked: 2025-11-07 09:55 PM EST

Did you know? You can invite friends and family to your search. They can join your search, rate and discuss listings with you.